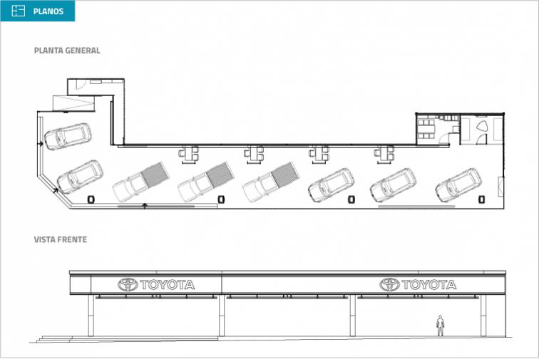
Toyota | 2007
Ganadera
Buenos Aires, Argentina
Desde 2005 Artek viene ofreciendo soluciones a los stands corporativos de la marca automotriz Toyota. Emulando las curvas de su isotipo y utilizando los colores institucionales, con diseño determinante y sólido como su marca. Más de 60 stands diseñados y construidos.
Proyectos relacionados:
Toyota, Salón del Automóvil (Diseño), 2017
Toyota, Acción Verano - Carlos Paz, Córdoba, 2016
Toyota, Concesonaria Av. Libertador - Vte. Lopez (Logo), 2016
Toyota, Expoagro (Diseño), 2016
Toyota, Acción Verano - Carlos Paz, Córdoba, 2015
Toyota, Acción Verano - Mar del Plata, 2015
Toyota, Acción Verano - Pinamar, 2015
Toyota, Dakar - Tecnópolis, 2015
Toyota, Expoagro (Diseño), 2015
Toyota, Acción Verano - Pinamar, 2014
Toyota, Expoagro (Diseño), 2014
Toyota, Oficinas centrales (Logo), 2014
Toyota Servicio Técnico, Expoagro, 2014
Toyota, Salón del Automóvil, 2013
Toyota, Toyota Zarate (Exhibidor), 2013
Toyota Servicio Técnico, Expoagro, 2013
Toyota, Ganadera (Diseño), 2012
Toyota Servicio Técnico, Expoagro, 2012
Toyota Servicio Técnico, Pinamar, 2012
Toyota, Ganadería, Agricultura e Industria, 2011
Toyota Servicio Técnico, Expoagro, 2011
Toyota Servicio Técnico, Pinamar, 2011
Toyota Servicio Técnico, Expoagro, 2009
Toyota, Agroactiva, 2008
Toyota, Restaurantes - El Sinor, 2008
Toyota, Restaurantes - El Sinor, 2008
Toyota, Restaurantes - John Bull, 2008
Toyota, Restaurantes - John Bull, 2008
Toyota, Restaurantes - Sushi Club, 2008
Toyota, Restaurantes - Sushi Club, 2008
Toyota (Acceso a Pista Pruebas), Expoagro, 2007
Toyota (Pórtico Estacionamiento), Expoagro, 2007
Toyota (Servicio Técnico), Expoagro, 2007
Toyota (Servicio Técnico), Pinamar, 2007
Toyota (Acceso a Pista Pruebas), Agroactiva, 2006
Toyota (Acceso a Pista Pruebas), Feriagro, 2006
Toyota (Pórtico Estacionamiento), Feriagro, 2006
Toyota (Servicio Técnico), Feriagro, 2006
Toyota, Acción Verano - Pinamar, 2005
Toyota, Expochacra, 2005
Toyota, Lanzamiento Nueva Hilux-Hotel Sheraton Pilar, 2005
Toyota, Pilar Golf, 2005
Toyota (Servicio Técnico), Pinamar, 2005
| Share |
![]() |

